general.skipToContentLink general.skipToSearch general.skipToNavigation
A propos Réparation & SAV Contact

NOVY 42120 table de cuisson avec hotte integrée - 120cm

fort (≥ 42 dB) • > 95 cm largeur • normal: de 400 à 700 m3/h Fiche d'informations sur le produit

Description

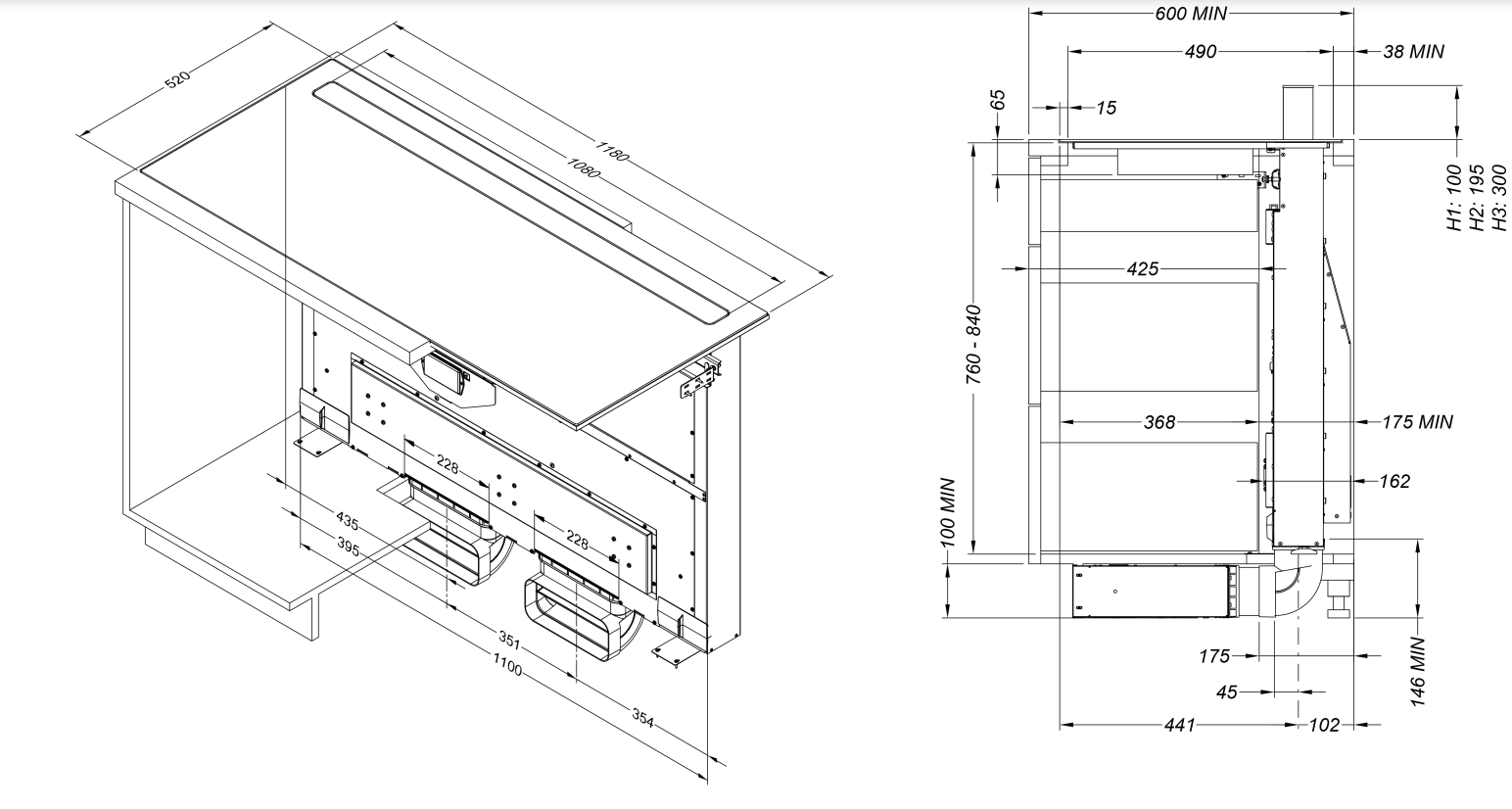
DIMENSIONS VENTILATION DE CUISINE (MM)
Dimensions (LxPxH) (mm) 1100 x 162 x 760-840

LABEL ÉNERGÉTIQUE
Classe d'efficacité énergétique (EEIhotte) B
Consommation énergétique annuelle (kWh/an) (AEChotte) 65,4
Efficacité fluidodynamique (FDEhotte) B
Rendement lumineux (LEhotte) -
Efficacité de filtration des graisses (GFEhotte) C

CARACTÉRISTIQUES GÉNÉRALES
Moteur intégré: Oui
Amortisseur de bruit: Oui
Nombre de filtres à graisses 2
Recyclage (par défaut) / Évacuation à l'extérieur: Oui /: Oui
Nombre d'échappements 2
Dimensions sortie d'air (mm) 89 x 222
Positionnement sortie d'air Dessous avant / arrière

FONCTIONS
Fonction d'aspiration préprogrammé: Oui
Fonction d'aspiration manuelle: Oui
Commande Tactile
Verrouillage bandeau de commande: Oui
Nombre de vitesses 5 + 3 intensive
Arrêt différé (minutes) 10-30 (par défaut)
Témoin de saturation des filtres à graisses: Oui
Témoin de saturation des filtres monoblock: Oui
Verre amovible tour d'aspiration: Oui
Hauteur structure d'aspiration (cm) 10, 20, 30 + librement réglable
Récipient collecteur pour le nettoyage 2 en-haut, 2 en bas

DÉBIT & NIVEAU SONORE
Débit évacuation (m3/h) (EN 61591):
- Minimale 237
- Maximale 1009
- Optimal mesuré 446
Pression d'air (Pa):
- Maximale 416
- Optimal mesuré 315
Pression accoustique / puissance acoustique mode évacuation (dB(A) re 1 pW)(EN 60704-2-13):
- Minimale 22/35
- Maximale continu 48/61
- Maximale intensif 56/70
Pression accoustique / puissance acoustique mode recyclage (dB(A) re 1 pW)(EN 60704-2-13):
- Minimale 25/39
- Maximale intensif 58/71
Fiche technique 42 120/2
1 - 4 v1.1
Table de cuisson

CARACTÉRISTIQUES GÉNÉRALES
Verre opaque noir intense: Oui
Bords rodés: Oui
Pose standard / affleurante: Oui /: Oui

DIMENSIONS TABLE DE CUISSON (MM)
Dimensions (LxPxH) (mm) 1180 x 520 x 65
Découpe pose standard (LxP)(mm) 1160 x 490
Dimensions du sertissage avec pose affleurante (LxPxH) (mm) 1184 x 524 x 6

ZONES DE CUISSON
Zones octogonales (240 x 200 mm) 4
Puissance zones octogonales (W) 2100/3000
Zones rondes (280mm) 1
Puissance zones rondes (W) 2100/3000 (Central)

FONCTIONS
Système de commande Commande slider avec LED rouge
Nombre de vitesses 9 + Power + Super Power
Minuterie sur chaque zone: Oui
Minuterie indépendante: Oui
Stop&Go: Oui
Fonction chauffe-plat: Oui (70 °C)
Fonction bridge automatique: Oui (2x)
Témoin de chaleur résiduelle: Oui
Fonction automatisme de cuisson: Oui
Verrouillage bandeau de commande: Oui
Détection de casserole automatique: Oui
Fonction grill: Oui
Fonction chef: Oui

CARACTÉRISTIQUES TECHNIQUES
Puissance de raccordement totale hotte 450 W
Puissance de raccordement totale table de cuisson 10.400 W
Tension de raccordement hotte 230 V
Câble d'alimentation hotte Schuko 1m5
Tension de raccordement table de cuisson 230 V / 400V - 1N / 2N / 3N
Câble d'alimentation table de cuisson 2m
Consommation en mode stand-by Ps (W) <0,5 W
Poids (kg) 56,0

Spécifications

Code fabricant 42120
Marque NOVY
EAN 5414425216260
bord sans cadrement
capacité d'extraction normal: de 400 à 700 m3/h
classe d'energie B
commande boutons tactils
contrôle à distance par wlan sans contrôle à distance par WLAN
diamètre ø 220 mm
extra zone de cuisson _
largeur > 95 cm largeur
son fort (≥ 42 dB)
valeur de connexion ≥ 10.000 W
zones d ecuisson 5 zones de cuisson
zones extractives zones extractives

Documents

Besoin d'aide ?

Nous sommes là pour vous aider

Comparer les produits

Chargement...

Impossible de charger les produits. Veuillez réessayer.

Aucun produit à comparer