general.skipToContentLink general.skipToSearch general.skipToNavigation
A propos Réparation & SAV Contact

NOVY 42110 table de cuisson avec hotte integrée - 120cm

fort (≥ 42 dB) • > 95 cm largeur • 4 zones de cuisson Fiche d'informations sur le produit

Description

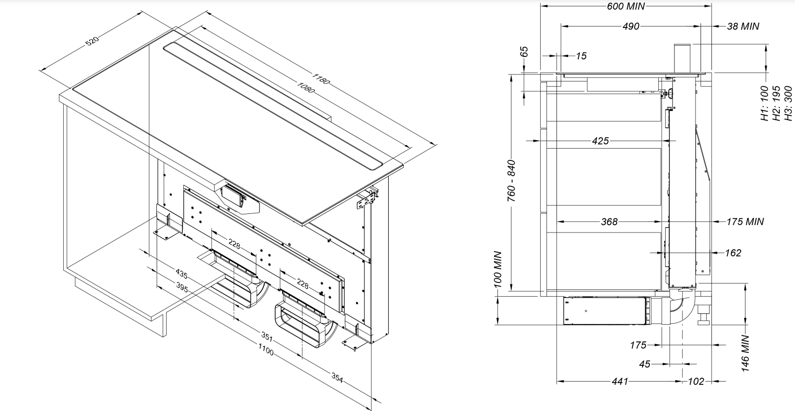
Dimensions ventilation de cuisine (mm)
Dimensions (LxPxH) (mm) 1100 x 162 x 760-840

Label énergétique
Classe d'efficacité énergétique (EEIhotte) B
Consommation énergétique annuelle (kWh/an) (AEChotte) 110,2
Efficacité fluidodynamique (FDEhotte) B
Rendement lumineux (LEhotte) -
Efficacité de filtration des graisses (GFEhotte) C

Caractéristiques générales
Moteur intégré
Amortisseur de bruit
Nombre de filtres à graisses 2
Recyclage (par défaut) / Évacuation à l'extérieur
Nombre d'échappements 2
Dimensions sortie d'air (mm) 89 x 222
Positionnement sortie d'air Dessous avant / arrière

Fonctions
Fonction d'aspiration préprogrammé
Fonction d'aspiration manuelle
Commande Tactile
Verrouillage bandeau de commande
Nombre de vitesses 5 + 3 intensive
Arrêt différé (minutes) 10-30 (par défaut)
Témoin de saturation des filtres à graisses
Témoin de saturation des filtres monoblock
Verre amovible tour d'aspiration
Hauteur structure d'aspiration (cm) 10, 20, 30 + librement réglable
Récipient collecteur pour le nettoyage 2 en-haut, 2 en bas

Débit & niveau sonore
Débit évacuation (m3/h) (EN 61591):
- Minimale 243
- Maximale 1051
- Optimal mesuré 489
Pression d'air (Pa):
- Maximale 525
- Optimal mesuré 368
Pression accoustique / puissance acoustique mode évacuation (dB(A) re 1 pW)(EN 60704-2-13):
- Minimale 28/41
- Maximale continu 48/60
- Maximale intensif 58/71
Pression accoustique / puissance acoustique mode recyclage (dB(A) re 1 pW)(EN 60704-2-13):
- Minimale 28/40
- Maximale intensif 61/74

Caractéristiques générales
Verre opaque noir intense
Bords rodés
Pose standard / affleurante
Dimensions table de cuisson (mm)
Dimensions (LxPxH) (mm) 1180 x 520 x 65
Découpe pose standard (LxP)(mm) 1160 x 490
Dimensions du sertissage avec pose affleurante (LxPxH) (mm) 1184 x 524 x 6

Zones de cuisson
Zones octogonales (240 x 200 mm) 2
Puissance zones octogonales (W) 2100/3000 (Centre droite, droite)
Zones rondes (230mm) 1
Puissance zones rondes (W) 2100/3000 (Centre gauche)
Zones rondes (280mm) 1
Puissance zones rondes (W) 2100/3000 (Gauche)

Fonctions
Système de commande Commande slider avec LED blanches
Nombre de vitesses 9 + Power + Super Power
Minuterie sur chaque zone
Minuterie indépendante
Stop&Go
Fonction chauffe-plat (70 °C)
Fonction bridge automatique (1x)
Témoin de chaleur résiduelle
Fonction automatisme de cuisson
Verrouillage bandeau de commande
Détection de casserole automatique
Fonction grill
Fonction chef

Caractéristiques techniques
Puissance de raccordement totale hotte 450 W
Puissance de raccordement totale table de cuisson 7.400 W
Tension de raccordement hotte 230 V
Câble d'alimentation hotte Schuko 1m5
Tension de raccordement table de cuisson 230 V / 400V - 1N / 2N
Câble d'alimentation table de cuisson 2m
Consommation en mode stand-by Ps (W) <0,5 W
Poids (kg) 56,0

Spécifications

Code fabricant 42110
Marque NOVY
EAN 5414425219520
bord sans cadrement
capacité d'extraction haut: de 700 m3/h
classe d'energie B
commande slider
contrôle à distance par wlan contrôle à distance par WLAN
diamètre ø 220 mm
extra zone de cuisson _
largeur > 95 cm largeur
son fort (≥ 42 dB)
valeur de connexion 7.000 W - 7.999 W
zones d ecuisson 4 zones de cuisson
zones extractives zones extractives

Documents

Besoin d'aide ?

Nous sommes là pour vous aider

Comparer les produits

Chargement...

Impossible de charger les produits. Veuillez réessayer.

Aucun produit à comparer